Recreation Center

Course

ARCH202 - Intermediate Design II

Site Location

12 Howard Street, NYC

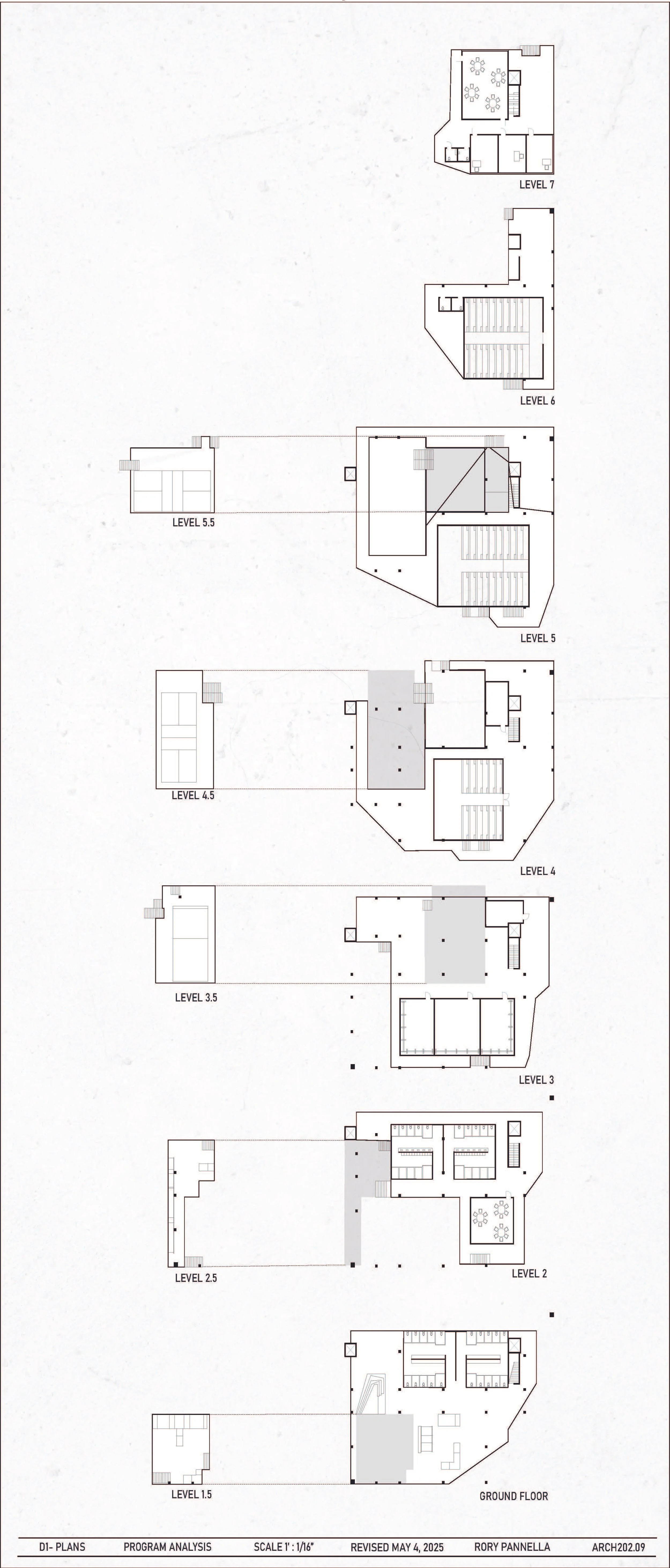
Designed from the existing structure of a parking garage on the border of Soho and China town, this recreation center caters towards the diverse community of age and culture. The vertical circulation travels along the exterior windows while corridors travel through the center of the building and overlooks the public programs. Some of these public spaces include a skatepark, pickleball courts and classrooms. The private spaces provided on the upper floors include dance rooms and offices.

Doll House Model